6212 Propiedades
364 CALLE SAN JORGE UNIT 3G Puerto Rico (STL) , 00913
Comfortable Turnkey Three bedroom two bathrooms apartment in the center of Santurce. Water view apar...
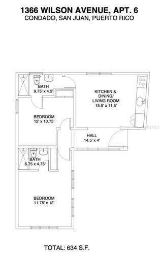
1366 WILSON AVE UNIT 6 Puerto Rico (STL) , 00907
One or more photo(s) has been virtually staged. Perched on the second floor, Unit 6 showcases a well...
353 PRINCIPAL Puerto Rico (STL) , 00985
The remodel includes brand New Electrical, brand new new plumbing , brand new windows, and the ro...
PR 7758 BO. GUARDARRAYA Puerto Rico (STL) , 00723
Owner financing available. Unique investment opportunity near the beach in Bo. Guardarraya, Patillas...
305 VILLAMIL UNIT 1712 Puerto Rico (STL) , 00907
In the heart of Santurce, one of San Juan’s most vibrant and desirable neighborhoods, this stunning ...
5 AVE MUNOZ RIVERA UNIT 404 Puerto Rico (STL) , 00901
Step into Laguna Plaza, a premier high-end condominium that embodies sophistication and luxury in th...
500 PLANTATION DRIVE UNIT 3-202 Puerto Rico (STL) , 00646
Experience luxury like no other in this stunning Plantation Village sub-penthouse within the acclaim...
1 RODRIGUEZ EMA Puerto Rico (STL) , 00979
Elegant ocean views with Caribbean breezes. Spacious 3-bedroom, 2-bathroom fully renovated apartmen...
BO SAN ISIDRO Puerto Rico (STL) , 00775
Discover your slice of paradise in Culebra, Puerto Rico! This expansive 14.075 cuerdas (13.67 acres)...
165 SAN JORGE UNIT 302 Puerto Rico (STL) , 00911
Two bedroom apartment Teo blocks from the beach of Ocean Park Condado. Completely Remodelled with ne...
Nota* Ahora puedes colocar otro listing en Exclusive o Prime Listing.