6238 Propiedades
176 SAN JORGE UNIT 3A Puerto Rico (STL) , 00911
176 San Jorge Street in the Park Place Condominium on San Jorge Street in San Juan offers a fully fu...
KM 19.9 CARR 128 Puerto Rico (STL) , 00698
29.13 acres farm in the Rubias neighborhood of Yauco. With direct access to PR-128. Just 2 minutes f...
SR 101 km 16.3 ANGELO ZAPATA ST LLANOS COSTA WARD Puerto Rico (STL) , 00623
CABO ROJO PUERTO RICO 00623 , Located on SR 101 km 16.3 Llanos Costa , Angelo Zapata Street. Accordi...
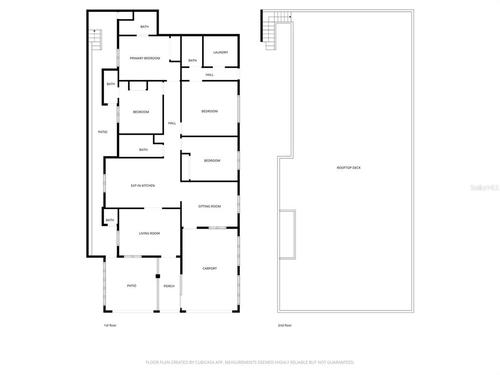
7 CALLE OPALO Puerto Rico (STL) , 00603
Discover the perfect blend of comfort, location, and investment potential in this beautiful 4-bedroo...
19 VILLA NEVAREZ DEV. UNIT 1032 Puerto Rico (STL) , 00927
Spacious residence available for rent in Villa Nevárez, San Juan, one of the most central and conven...
4123 ISLA VERDE AVE UNIT 203 Puerto Rico (STL) , 00979
condominio de 3 habitaciones y 2 banos ubicado directamente frente a la playa en Isla Verde. Esta un...
609 CONDADO UNIT 503 Puerto Rico (STL) , 00907
Experience effortless Condado living at 609 Calle Condado, Apt. 503. This chic 610 SF 1-bedroom, 1-b...
415 CAMINO SUSUA SABANERA DORADO Puerto Rico (STL) , 00646
Step Into the BEST Deal in your own Private Oasis in Sabanera Dorado Perched on an expansive 1,34...
1601 RIO MAR VILLAGE UNIT 1601 Puerto Rico (STL) , 00745
Nestled within the verdant embrace of Rio Mar Village, and ensconced in the upscale Wyndham Rio Mar ...
368 CAMINO LAS PICUAS UNIT 3209 Puerto Rico (STL) , 00745
Condominium Camino del Mar II – Beachfront Living Near Wyndham Rio Mar Hotel Beautiful fully furnis...
Nota* Ahora puedes colocar otro listing en Exclusive o Prime Listing.