6221 Propiedades
152 SAN JUSTO STREET Puerto Rico (STL) , 00901
Located in the vibrant historic district of Old San Juan, this 10-unit residential building blends c...
16 OCEAN DRIVE AVENUE LOTS A & B Puerto Rico (STL) , 00773
GREAT LOCATION TO DEVELOP A UNIQUE CONDOMINIUM SO CLOSE TO THE FAMOUS LUQUIILLO BEACH. STEPS TO TH...
CLL KROS INT PR 169 STREET Puerto Rico (STL) , 00971
20 acres in Guaynabo with residential zoning and preliminary approvals for 400 apartments. Near the ...
M1 COSTA DORADA UNIT M1 Puerto Rico (STL) , 00646
Welcome to your private sanctuary where Caribbean luxury meets resort living in one of Dorado's most...
MAYAGUEZ Puerto Rico(STL) , 00680
Spacious 1,900-square-meter lot located in the Cuba Sector, Miradero Ward, Mayagüez. Road 108, Km 3....
172 CALLE TAFT UNIT 102 Puerto Rico (STL) , 00907
Charming 3-bedroom, 1-bathroom residence, located in the heart of Condado, right next to where La Bo...
225 RUÍZ BELVIS Puerto Rico (STL) , 00912
Lot at 225 Ruiz Belvis St. 270.00 m² lot with two partially built structures and full slab foundatio...
2ND FL SECTOR LA ROCA CALLE ORCA UNIT 124 Puerto Rico (STL) , 00738
Spacious Second Floor Residence Near Seven Seas Beach Discover comfortable coastal living in this...
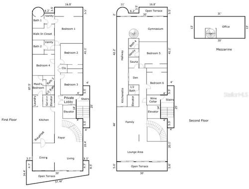
Ave Condado 888 AVE ASFHORD UNIT 17 Puerto Rico (STL) , 00907
FULL-FLOOR PENTHOUSE · ASHFORD LAGOON PLAZA · CONDADO A truly rare offering in the heart of Conda...
# 901 COND. EL DORADO CLUB Puerto Rico (STL) , 00692
Live the resort lifestyle at El Dorado Club Condominium, a private gated community with 24/7 control...
Nota* Ahora puedes colocar otro listing en Exclusive o Prime Listing.