Comprar

1 BOULEVARD DE PALMAS

  • Comercial
Comparar
$ 4,800,000

1 BOULEVARD DE PALMAS Puerto Rico (STL) , 00962

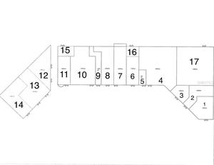
Fully occupied shopping center with a steady income stream for sale in Catano for $4,800,000. The property has 46,015 sf, sits on a 12,192 sm and has 210 parking spaces. Zoned CI.

Detalles de la propiedad

Áreas comunes

Profile Images

Contacta al profesional de bienes raíces

1 BOULEVARD DE PALMAS Puerto Rico (STL) , 00962

Ubicación en el mapa

Expandir

Ubicación en el mapa

Expandir
Profile Images

Explora Más

Comprar
$ 150,000

CARR 346 CARR 346 km 0.5 Int, Jaguitas (Barrio), Hormigueros, Puerto Rico 00660

CARR 346 CARR 346 km 0.5 Int Jaguitas (Barrio) Hormigueros Puerto Rico (xP) , 00660

Comprar
$ 1,575,000

Km 11.7 SR 466, Bajuras (Barrio), Isabela, Puerto Rico 00662

Km 11.7 SR 466 Bajuras (Barrio) Isabela Puerto Rico (xP) , 00662

Comprar
$ 140,000

Km 10.5 PR 103, Boqueron (Barrio), Cabo Rojo, Puerto Rico 00623

Km 10.5 PR 103 Boqueron (Barrio) Cabo Rojo Puerto Rico (xP) , 00623

Comprar
$ 1,250,000

1 DORADO REEF, Dorado Reef (Urbanizacion), Dorado, Puerto Rico 00646

1 DORADO REEF Dorado Reef (Urbanizacion) Dorado Puerto Rico (xP) , 00646

Alquilar
$ 6,500

260 HARBOR DRIVE 13, Isla San Marcos (Urbanizacion), Humacao, Puerto Rico 00791

260 HARBOR DRIVE 13 Isla San Marcos (Urbanizacion) Humacao Puerto Rico (xP) , 00791

Comprar
$ 225,000

KM 21.5 CARR 115 solar 12, Guayabo (Barrio), Aguada, Puerto Rico 00602

KM 21.5 CARR 115 solar 12 Guayabo (Barrio) Aguada Puerto Rico (xP) , 00602

Comprar
$ 595,000

BO. MINILLAS CAMINO PABLO SILVA

BO. MINILLAS CAMINO PABLO SILVA Puerto Rico (STL) , 00956

Comprar
$ 42,500

Bo. Marzan PR-820

Bo. Marzan PR-820 Puerto Rico (STL) , 00953

Comprar
$ 210,000

SR 183 KM 14.6

SR 183 KM 14.6 Puerto Rico (STL) , 00754

Comprar
$ 499,000

CARR 198 BA. TEJAS

CARR 198 BA. TEJAS Puerto Rico (STL) , 00791